Town House, Elda, Alicante For Sale
Description
Opportunity for investors in Elda
Spacious town house for sale, located a stone's throw from the Ficia and Avenida de las Olimpiadas, one of the most sought-after areas in Elda. This property offers multiple development possibilities, making it ideal for investors or developers looking for a highly profitable project.
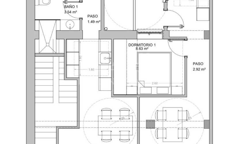
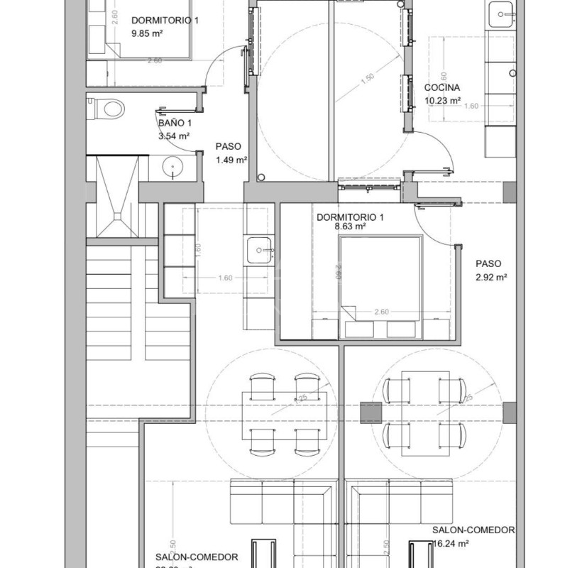
The property can be transformed into a building with four independent apartments, distributed as follows:
- Two ground-floor apartments, each with one bedroom, both with a private patio.
- Two upstairs apartments, also with one bedroom each.
- Upstairs, a communal terrace will add value and appeal to the residential complex.
A proposed layout plan is provided to visualize the project's potential.
Thanks to its excellent location, spaciousness, and versatility, this property represents a magnificent investment opportunity, ideal both for obtaining rental income and for the subsequent sale of the apartments once the development is complete.
We have a large portfolio of properties in the Costa Blanca and Costa Calida areas, specialising in country properties, villas, fincas, building plots and design and build options in the Alicante and Murcia regions with a particular emphasis on Elda, Monovar, Pinoso, Sax, Villena, Aspe, Fortuna, Albacete and many more surrounding areas. We have been established since 2004 and have decades of experience between the team which we bring to bear to help you find and secure your new dream home. We help you every step of the way to make sure your purchase in Spain is safe and hassle free. We are not here to sell you a property, we are here to help you realise your dream and find what is right for you. With us you are in the safest hands. Contact us now to have a no obligation chat about how you too can realise your dreams.
Garden
- Open Terrace/Patio
Utilities
- Mains Electric
- Mains Water
- Internet
- Telephone
- Mains Sewerage
Features
- Energy rating: In process
Distances








Location
plans
Videos
Economy
Send to a friend
×AIPP Association of International Property Professional
Latest News
Spain Resale Market is Booming
Based on the Idealista report published on January 5, 2026, here are the key takeaways regarding housing prices for used properties in 2025: Spain (National Overview) Annual Growth: Used...
5/Jan/2026
Military Permit to buy rustic...
Military Permit to buy rustic propertus in Spain for Non EU Citizens ASPECTS TO TAKE INTO ACCOUNT WHEN BUYING A PROPERTY IN SPAIN MILITARY AUTHORISATION According to Law 8/1975 , and...
30/May/2025
Testimonials
Antonia accompanied me on the viewing of the property I was later to offer on and am in the process of buying, in Murcia province, Spain. The helpful, friendly and informative approach she adopts...
Shiraz I really want to say thank you so much for your efforts, in fact the experience was quite amazing in helping us in every step to purchase our house. I will therefore recommend anyone to...
















