Appartement, Torrevieja, Alicante Nouvelle construction
Dèscription
Appartements modernes neufs à seulement 150 m de la mer à Torrevieja Programme immobilier boutique exclusif en bord de mer Ce nouveau complexe propose seulement 3 appartements modernes dans un emplacement privilégié, à seulement 150 mètres de la plage Los Náufragos à Torrevieja. Faisant à l'origine partie d'un espace commercial construit en 1989, la propriété a été entièrement rénovée et transformée en élégants logements d'une chambre et d'une salle de bain, conçus pour une vie moderne en bord de mer. Design contemporain et confort prêt à emménager Chaque appartement a été entièrement rénové avec des finitions de haute qualité et est livré entièrement meublé et équipé. Les caractéristiques comprennent : Cuisine ouverte avec meubles et appareils électroménagers inclus Meubles, éclairage, rideaux, téléviseurs et décoration design Climatisation chaud/froid par split dans le salon et la chambre Salle de bains avec meubles, miroir et paroi de douche Terrasse à l'avant avec espace pour table et chaises Cette solution clé en main vous permet de profiter de votre nouvelle maison sans avoir à vous soucier de la meubler ou de l'équiper. La livraison est prévue pour février 2026, une fois les licences et les raccordements aux services publics finalisés, ce qui en fait une opportunité presque prête à emménager. Emplacement central privilégié à Torrevieja Situés à quelques pas de la mer et à 10 minutes du centre-ville, ces appartements bénéficient d'un emplacement imbattable. À moins de 300 mètres, vous trouverez des restaurants, des supermarchés, des pharmacies, des banques et des transports en commun. La marina de Torrevieja est à seulement 1 km, et les services essentiels tels que l'hôpital de Torrevieja et le centre commercial Las Habaneras sont facilement accessibles. Accès facile aux destinations clés Plage de Los Náufragos : 150 m Port de plaisance de Torrevieja : 1 km Parcours de golf de Villamartín : 10 km Aéroport d'Alicante : 45 km Un style de vie au bord de la Méditerranée Torrevieja est l'une des destinations les plus prisées de la Costa Blanca, connue pour ses plages de sable, sa promenade animée et son excellent climat avec plus de 300 jours de soleil par an. Que vous recherchiez une résidence permanente, une maison de vacances ou un investissement, ce complexe immobilier de charme offre l'équilibre parfait entre confort, style et emplacement. Réservez dès aujourd'hui votre appartement en bord de mer Découvrez la vie moderne à quelques pas de la mer. Contactez-nous dès maintenant pour organiser une visite et réserver votre nouvelle maison à Torrevieja avant qu'il ne soit trop tard.Features
- note de l'énergie: C
Distances
l'endroit
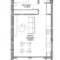
plans
Vidéos
Economy
Envoyer à un ami
×AIPP Association of International Property Professional
Dernière Nouvelles
Le marché de la revente en Espagne...
D'après le rapport Idealista publié le 5 janvier 2026, voici les principaux points à retenir concernant les prix des logements d'occasion en 2025 : Espagne (Aperçu national) Croissance...
5/janv./2026
L'investissement immobilier...
Les achats de logements par des étrangers en Espagne augmentent de 10 %, atteignant des prix records En 2024, les étrangers ont acheté 10 % de logements en plus en Espagne par rapport à l'année...
11/avril/2025
Testimonials
Shiraz Je tiens vraiment à vous remercier pour vos efforts, en fait l'expérience a été tout à fait incroyable pour nous aider à chaque étape de l'achat de notre maison. Je recommanderai donc...
Chez Stratus International, on se sent vraiment entre de bonnes mains ! Le premier appel téléphonique avec Shiraz nous a immédiatement mis en confiance. Il a été précis et nous a mis à l'aise....















