Stratus International MENU
Call Us (9-8pm) 0034 657 834 154 · 0034 627 241 129
m2
m2
Propriétés




Appartement, Estepona, Málaga A vendre

Référence CDSG-47835
Ajouter au favoris Supprimer  les favoris
Bedrooms Bedrooms
1
Bathrooms Bathrooms
1
Swimming Pool Swimming Pool
Garage Garage
Guest Annexe Guest Annexe
Build Area Build Area
65 m2
Plot Size Plot Size
Garden Garden
Electricity Electricity
Water Water
Internet Internet
Telephone Telephone
Walking Walking
350.000€
Shiraz Khaliq

Plus d'informations

Dèscription

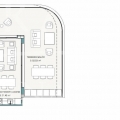
Complexe résidentiel exclusif à Estepona avec vue sur la mer et style de vie méditerranéen Nouveau complexe résidentiel à Las Mesas, Estepona Ce nouveau complexe résidentiel exclusif situé à Las Mesas, Estepona, propose 163 logements élégants conçus pour allier le confort moderne à la beauté naturelle de la Costa del Sol. Avec des options de 1, 2 et 3 chambres, les résidents peuvent choisir entre des appartements au rez-de-chaussée avec jardins privés, des étages intermédiaires avec terrasses spacieuses ou des penthouses avec solariums privés et vues imprenables sur la mer et les montagnes. Emplacement privilégié avec d'excellentes connexions Las Mesas est l'un des quartiers les plus prisés d'Estepona, alliant à la perfection les commodités urbaines et un environnement naturel. Le complexe se trouve à seulement 1,3 km de la plage, à 2 km de la marina d'Estepona et à quelques pas des supermarchés, des écoles, des installations sportives et des transports publics. La charmante vieille ville d'Estepona (2,5 km) est facilement accessible et offre des rues andalouses traditionnelles, des places animées et une grande variété de restaurants. L'aéroport international de Malaga n'est qu'à 85 km, tandis que l'aéroport de Gibraltar est accessible en seulement 45 km. Les amateurs de golf trouveront des parcours prestigieux tels que Estepona Golf (7 km) et Valle Romano Golf (8 km) à quelques minutes en voiture. Des équipements de style resort pour tous les jours Le complexe a été conçu pour offrir le confort et l'exclusivité d'un resort dans un cadre résidentiel privé. Les résidents peuvent profiter : Deux piscines extérieures. Une piscine intérieure chauffée avec spa. Une salle de sport entièrement équipée et un espace de gymnastique en plein air. De magnifiques jardins paysagers et une aire de jeux pour les enfants. Un parking souterrain avec station de lavage. Un grand hall d'entrée et un accès sécurisé. Des maisons contemporaines au design élégant Chaque appartement est conçu avec des plans ouverts qui maximisent la lumière naturelle et permettent une transition harmonieuse entre l'intérieur et l'extérieur. De grandes baies vitrées relient les salons, les cuisines et les chambres à coucher à de spacieuses terrasses, créant une continuité visuelle vers la mer et les montagnes. Les intérieurs sont dotés de sols en porcelaine, de cuisines modernes avec appareils électroménagers intégrés, de la climatisation par conduits et de finitions de haute qualité. La ventilation transversale est possible grâce à une conception transversale intelligente, garantissant de l'air frais et un confort tout au long de l'année. Découvrez le style de vie méditerranéen Estepona est devenue l'une des destinations les plus prisées de la Costa del Sol, avec plus de 20 km de plages Pavillon Bleu, un port de plaisance animé, des attractions culturelles et un climat méditerranéen exceptionnel. Que ce soit comme résidence permanente ou comme maison de vacances, ce projet immobilier offre l'équilibre idéal entre détente, style et commodité. Découvrez la vie moderne au bord de la mer à Estepona. Contactez-nous dès aujourd'hui pour obtenir plus d'informations ou pour organiser une visite de votre future maison.

Features

  • note de l'énergie: Array

Distances

l'endroit

Images

plans

Vidéos

Economy

Calcul hypothécaire

Change de devises

  • : 350.000 EUR
  • Livres: 302.516 GBP
  • rouble Russe: 0 RUB
  • Francs Suisse: 320.075 CHF
  • Yuan chinois: 2.761.465 CNY
  • Dollars: 405.965 USD
×

Informez-moi de baisse de prix

×

Envoyer à un ami

×

AIPP Association of International Property Professional

AIPP - Association of International Property Professional
Voir toutes les nouvelles

Dernière Nouvelles

Le marché de la revente en Espagne...

Le marché de la revente en Espagne est en plein essor.

D'après le rapport Idealista publié le 5 janvier 2026, voici les principaux points à retenir concernant les prix des logements d'occasion en 2025 : Espagne (Aperçu national) Croissance...

5/janv./2026

L'investissement immobilier...

L'investissement immobilier étranger en Espagne atteint de nouveaux sommets

Les achats de logements par des étrangers en Espagne augmentent de 10 %, atteignant des prix records En 2024, les étrangers ont acheté 10 % de logements en plus en Espagne par rapport à l'année...

11/avril/2025

Subscribe to our newsletter

×

Email me more like these results

×