Villa, Fuente Alamo, Murcia Nouvelle construction
Dèscription
VILLA JUMELÉE PRÊTE À L'EMPLOI À FUENTE ALAMO, MURCIA Résidence de maisons de ville, villas indépendantes et jumelées à Fuente Álamo, Murcia. Vous pouvez choisir parmi sept modèles de maisons différents, conçus pour répondre aux goûts de chacun. Des conceptions rustiques combinées à des matériaux de première qualité et un accent mis sur un espace de vie confortable, il y en a pour tous les goûts. Les résidents de cette communauté privée de belles maisons spacieuses pourront également profiter de leurs propres jardins et piscines communs. Cette villa jumelée au design inhabituel comprend 2 chambres à coucher et 1 salle de bains, une cuisine indépendante, un salon avec des portes-fenêtres donnant sur le porche couvert et une terrasse semi-couverte sur le toit. Une option pour une piscine privée à un coût supplémentaire. Fuente Álamo de Murcia est une ville et une municipalité de la région de Murcie, dans le sud de l'Espagne. Elle est située à 22 km au nord-ouest de Carthagène et à 35 km au sud-ouest de Murcie. La ville se trouve dans le bassin de la Mar Menor, entourée par les montagnes d'Algarrobo, Los Gómez, Los Victorias et le Carrascoy. L'eau de ces montagnes s'écoule dans la Rambla de Fuente Álamo et ensuite dans la Mar Menor. Fuente Álamo se trouve à 30 minutes de l'aéroport de Murcia - Corvera.Features
- note de l'énergie: B
Distances








l'endroit
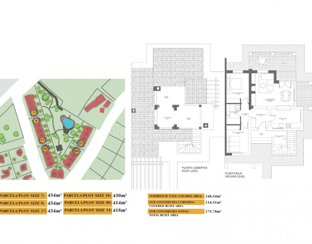
plans
Vidéos
Economy
Envoyer à un ami
×AIPP Association of International Property Professional
Dernière Nouvelles
Le marché de la revente en Espagne...
D'après le rapport Idealista publié le 5 janvier 2026, voici les principaux points à retenir concernant les prix des logements d'occasion en 2025 : Espagne (Aperçu national) Croissance...
5/janv./2026
L'investissement immobilier...
Les achats de logements par des étrangers en Espagne augmentent de 10 %, atteignant des prix records En 2024, les étrangers ont acheté 10 % de logements en plus en Espagne par rapport à l'année...
11/avril/2025
Testimonials
Shiraz Je tiens vraiment à vous remercier pour vos efforts, en fait l'expérience a été tout à fait incroyable pour nous aider à chaque étape de l'achat de notre maison. Je recommanderai donc...
Chez Stratus International, on se sent vraiment entre de bonnes mains ! Le premier appel téléphonique avec Shiraz nous a immédiatement mis en confiance. Il a été précis et nous a mis à l'aise....















